-
What is a machine room elevator?
-
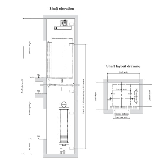
Machine room elevators are elevators that require a separate machine room to house the elevator traction machine or hydraulic system. Machine room elevators are typically used in commercial and high-rise buildings, where the elevator system is installed inside the machine room.
-
-
For home & residential elevators, should you choose a machine room elevator or a machine room-less elevator?
-
For space-constrained villas or low-rise commercial residences, a machine room-less home elevator is undoubtedly a better choice. They allow for flexible installation, thereby improving space utilization and saving on power consumption and elevator maintenance costs.
-









